Опис продукту
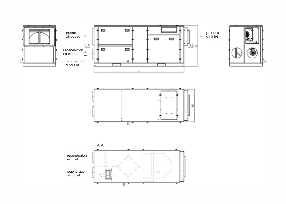
Осушувач повітря BO-CK - це інноваційний пристрій, який використовується в системах вентиляції, де одним з найважливіших технологічних параметрів є підтримка низького рівня вологості технологічного повітря. Стандартно установка виготовляється в 7 типорозмірах, що охоплюють продуктивність від 1400 до 8000 м³/год. Агрегат підготовлений для установки всередині приміщень.
Характеристики продукту
- 7 основних типорозмірів
- Продуктивність від 1400 до 8000 м3/год
- Екологічно чистий силікагелевий ротор
- Самонесуча конструкція
- Внутрішня збірка
- Висока продуктивність осушення завдяки ротору з відмінною адсорбцією вологи
- Зниження енергоспоживання завдяки високоефективному рекуператору
- Стабільна продуктивність в дуже широкому діапазоні вологості та температури повітря
- Технологічні та регенераційні повітряні фільтри
- Високостійкий корпус з покриттям Magnelis ZM310
- Ізоляція блоку товщиною 50 мм (негорюча вата класу А1)
- Енергоефективні та тихі двигуни EC класу IE4
- Опціонально: автоматизація Plug&Play
Сучасна система осушування повітря
Осушувач працює за принципом поглинання вологи через спеціально підготовлений ротор на основі адсорбенту. Ротор нечутливий до тривалих періодів простою осушувача, а це означає, що навіть повне насичення вологою не впливає на продуктивність пристрою. Осушувач працює з двома повітряними потоками різного розміру. Більший потік повітря (технологічне повітря) осушується при проходженні через осушувач, тоді як менший потік (регенераційне повітря) використовується для збору накопиченої вологи і виведення її за межі осушувача.
Спрощена експлуатація та обслуговування
Простіший доступ і обслуговування Завдяки панельному типу корпусу, що складається зі знімних кришок, до пристрою легше отримати доступ і обслуговувати його.
Високоефективні ЕС-двигуни
Завдяки використанню двох блоків, найсучасніших EC-двигунів (класу IE4), вентиляційна установка досягає найвищої ефективності при мінімальному споживанні енергії.
Екологічно чистий силікагелевий ротор
Додатковий рекуператор тепла
Зменшення теплових втрат
(отримання коефіцієнта теплового мосту TB1 (M))
Виберіть вашу вентиляційну установку
Автоматизація
та Plug&Play
Для установок вентиляції та кондиціонування повітря компанія VBW Engineering постачає комплексні системи автоматизації. Компанія також надає послуги з встановлення, введення в експлуатацію та сервісного обслуговування кваліфікованим, досвідченим персоналом. На основі консультацій із замовником управління приладами завжди налаштовується відповідно до специфіки об’єкта та індивідуальних потреб користувача.
Ідея системи автоматизації PLUG & PLAY полягає у підготовці системи управління вентиляційної установки таким чином, щоб пристрій був готовий до негайної експлуатації.
VBW Engineering пропонує установки кондиціонування та вентиляції із заводською системою автоматизації. Внутрішня проводка та розподільний пристрій з контролером, вмонтованим на вентиляційній установці.
Переваги застосування
системи PLUG & PLAY
(зниження витрат)
викликаних складними погодними умовами
кваліфікованими спеціалістами
проводи, електричні клеми, сертифіковані коробки та кабельні з'єднання
Зв’яжіться з нашим представником Контакт





